Mieszkanie na sprzedaż

Katowice, Złota

4 pokoje
75.75 m²
7 907,59 zł/m2
1 piętro
QUA-MS-501
Oblicz ratę kredytu

599 000 zł

Bez prowizji

Szczegóły oferty

Symbol oferty QUA-MS-501
Powierzchnia 75,75 m²
Powierzchnia użytkowa [m2] 75,75 m²
Liczba pokoi 4
Rodzaj budynku blok
Technologia budowlana beton, cegła
Standard
Opłaty w czynszu administracja, CO, fundusz remontowy, sprzątanie, woda, wywóz śmieci
Opłaty wg liczników gaz, prąd
Piętro 1
Liczba pięter w budynku 4
Stan lokalu Do remontu
Mies. czynsz admin. 800 PLN
Okna stare drewniane
Balkon jest
Liczba balkonów 2
Gaz jest
Woda ciepła z pieca CO
Ogrzewanie miejskie
Usytuowanie dwustronne
Klucze tak
vir_oferta_odlegloscplaza_linia tak
Marzenna Klikowska-Kułaga

Marzenna Klikowska-Kułaga

Manager
Nr licencji: 1071

Napisz wiadomość 5 Ofert

Opis nieruchomości

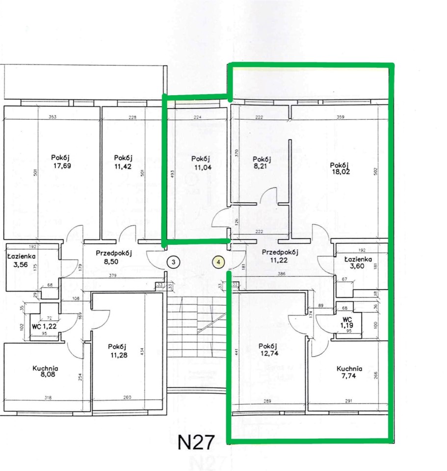
Funkcjonalne mieszkanie (75,75 m2) w bardzo dogodnej lokalizacji, usytuowane na pierwszym piętrze, cztero-piętrowego bloku. Dwa duże balkony.

Cztery pokoje o pow. 11, 8, 18 i 13 m2. Dwa przeciwległe balkony usytuowane na wschód i zachód.

Duża, ustawna, widna kuchnia o pow. 7,7 m2. Graniczy z pokojem o pow. 13m2 (możliwość połączenia).

Łazienka z wanną, wyposażona w pralkę. Na ścianach kasetony imitujące kafelki – łatwość demontażu. Oddzielne WC wraz z umywalką.

Dwa dostatnie przedpokoje.     

Ściany – tapeta, podłogi – wykładzina PCV i dywanowa. Stolarka okienna drewniana starej generacji.  Stolarka drzwiowa starej generacji.           

Mieszkanie wraz z meblami, jak na zdjęciu. Wysokość pomieszczeń 2,60 m.  Ogrzewanie wody – piecyk gazowy typu Junkers. C.O – miejskie.                                                            Do lokalu przypisana jest komórka lokatorska.

Wystawa okien: zachód i wschód. Jeden balkon z widokiem na panoramę Katowic wraz z wesołym miasteczkiem i kolej linową ELKA, a drugi balkon to  wesołego miasteczka

Wejście do budynku zabezpieczone domofonem. Zadbane klatki schodowe. Budynek po termoizolacji. Do mieszkania przynależy komórka lokatorska.

Wokół budynku nieoznakowane miejsca parkingowe przeznaczone dla mieszkańców budynku – wjazd zamykany elektronicznie.

W bezpośrednim sąsiedztwie pełna infrastruktura oraz wszelkie udogodnienia niezbędne do codziennego funkcjonowania oraz komunikacja autobusowa i tramwajowa.

Czynsz z zaliczką na CO, wodę oraz wywóz nieczystości - wynosi ok. 800 zł .

Mieszkanie do własnej aranżacji. Łatwość demontażu zabudowy łazienki i WC, przedpokoju i kuchni (minimalna ilość skuwania kafelek, zrywania boazerii).

Mieszkanie dedykowane dla rodziny – cztery mniejsze lub trzy dostatnie pokoje, oddzielna kuchnia, możliwość zrobienia dwóch łazienek oraz dwa duże balkony to ciekawa oferta z łatwym dostępem do miejsc pracy, szkół i uczelni oraz dostęp do rozrywki bez konieczności poruszania się własnym autem.
Nowoczesne wnętrza - to przykładowe aranżacje bez wyburzeń ścian.

KOSZTY POŚREDNICTWA POKRYWA WŁAŚCICIEL NIERUCHOMOŚCI.

Lokalizacja nieruchomości

Kalkulatory

Kalkulator kredytowy

Wysokość raty

PLN
%

Kalkulator kosztów

Podatek od czynności cywilno-prawnych

Taksa notarialna
(opłata notarialna)

Wniosek o wpis do WKW

VAT od prowizji
agencji nieruchomości

Vat od taksy notarialnej
(opłaty notarialnej)

Prowizja agencji nieruchomości

Wypisy aktu notarialnego

Razem

Uwaga: mogą wystąpić dodatkowe opłaty za założenie księgi wieczystej oraz ustanowienie hipoteki.

PLN
PLN
PLN
PLN
PLN
PLN
%
PLN

Manager

Proszę wprowadzić poprawne imię i nazwisko
Proszę wprowadzić poprawny numer telefonu
Proszę wprowadzić poprawny adres e-mail
Proszę zaznaczyć wymagane zgody
Rozwiąż równanie:
10 3
Niepoprawny wynik